Greek Aquarist's Boards - Φόρουμ συζητήσεων γιά το χόμπυ του Ενυδρείου

Επιστροφή   Greek Aquarist's Boards - Φόρουμ συζητήσεων γιά το χόμπυ του Ενυδρείου > Λίμνες > Δεξαμενές (τεχνητές λίμνες)

Δεξαμενές (τεχνητές λίμνες) Βήμα προς βήμα εκτέλεση και παρουσίαση του τεχνητού μας υγροβιότοπου. Λίγα ή πολλά λίτρα δεν έχουν ιδιαίτερη σημασία, το μόνο που μετράει είναι το αποτέλεσμα.

Απάντηση στο θέμα
 
Εργαλεία Θεμάτων Τρόποι εμφάνισης
  #1  
Παλιά 10-05-07, 11:53
shadow Ο χρήστης shadow δεν είναι συνδεδεμένος
Member
 
Εγγραφή: 05-06-2004
Περιοχή: Πειραιας
Μηνύματα: 150
Προεπιλογή Αυλη

Καλη σας μερα,
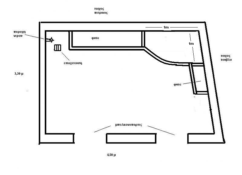
ειμαι στην φαση της ανακαινισης του σπιτιου μου το οποιο εχει μια αυλη η οποια ηταν παντοτε γεματη απλα με γλαστρες.Γυρω γυρω εχει τοιχο οπως φαινεται στο σχεδιο και θα ηθελα να χτισω ενα παρτερι με πετρα οπου το ενα κομματι του θα γινει (μακαρι ) μια μικρη λιμνουλα.το υπολοιπο χωμα και φυτεμα.Ευτυχως δεν την βλεπει ο ηλιος παρα μονο για 1-2 ωρες το απογευμα.Προβληματα τωρα ¨
1.κλασικα πως θα κανω στεγανοποιηση του παρτεριου-λιμνη
σκεφτομαι για κονιαμα στεγανοποιησης και μετα μεμβρανη για την λιμνη
2.κατσαριδες και ποντικια που δυστυχως κυκλοφορουν (πειραια ειμαστε )μπορω να τα αντιμετωπισω με φυσικο τροπο ?Χωρις χημικα ισως με καποια φυτα που τα απωθουν ?
Ποιος ειπαμε οτι ειναι γεωπονος......?
Θα εχω προβλημα με τα ψαρια?Οκ αν καμμια τερεζα πεσει μεσα θα την κανουν μαμ.Αλλα τα ποντικια ?Τα μισωωωωω
αυτα προς το παρον
Συνημμένα Thumbnails
Πατήστε στην εικόνα για να τη δείτε σε μεγένθυνση

Όνομα:  αυλη.jpg
Εμφανίσεις:  568
Μέγεθος:  31,4 KB  
__________________
Απάντηση με παράθεση
  #2  
Παλιά 10-05-07, 12:15
Tolis Ο χρήστης Tolis δεν είναι συνδεδεμένος
Δικτάτωρ
 
Εγγραφή: 29-11-2002
Περιοχή: Αθήνα
Μηνύματα: 5.612
Προεπιλογή

Η λιμνη δεν ειναι πολος ελξης για τα ποντικια. Αν η ερωτηση σου ειναι πως να ξεφορτωθεις γενικως ποντικια και κατσαριδες, αυτοι που κανουν μυοκτονιες θα σου βρουν λυση που δεν θα ειναι κοντα στη λιμνουλα για να πειραξει τα ψαρια.
Πριν προχωρησει η κουβεντα πες μας διαστασεις.
Απάντηση με παράθεση
  #3  
Παλιά 10-05-07, 13:00
shadow Ο χρήστης shadow δεν είναι συνδεδεμένος
Member
 
Εγγραφή: 05-06-2004
Περιοχή: Πειραιας
Μηνύματα: 150
Προεπιλογή

οπως εγραψα και παραπανω δεν θελω να χρησιμοποιησω χημικα.
Αυτη την λυση την ηξερα.Ρωταω αν γνωριζει καποιος αν υπαρχει φυτο εντομοτρωκτικοαπωθητικο.
διαβασα μια αναφορα για το φυτο σαμπούκους.Το ξερει κανεις?
Πολος ελξης μπορει να ειναι για τα ποντικια αφου φανταζομαι διψανε και αυτα καποια στιγμη .
Υψος λεω γυρω στα 70εκ,πλατος 60 και μηκος αναλογα ποσο με παιρνει
1+1 ή 1,5+1,5 εκτος αν παει στην μεγαλη πλευρα μονοκομματο.
Απλα στην γωνια δεν το βλεπει καθολου ηλιος
με τα κουνουπια θα εχω προβλημα ?
θελω να βαλω 2-3 χρυσοψαρα .Θα δουλεψει σκεφτομαι με φιλτρο αμβουργου.
αα ναι η μεγαλη μου επιθυμια ειναι ενας βατραχος.Θα ζησει ?και που θα τον βρω ? (ρωταω κατι πραγματα...)
__________________
Απάντηση με παράθεση
  #4  
Παλιά 10-05-07, 13:08
Το avatar του χρήστη Steve
Steve Ο χρήστης Steve δεν είναι συνδεδεμένος
Junior Member
 
Εγγραφή: 04-04-2007
Περιοχή: Chania
Μηνύματα: 601
Προεπιλογή

φυτο πρεπει να υπαρχει ενα με μπλε φυλα (το ειχα δει σε ενα περιοδικο του telemarketing store)
Απάντηση με παράθεση
  #5  
Παλιά 12-05-07, 07:55
Το avatar του χρήστη lucy
lucy Ο χρήστης lucy δεν είναι συνδεδεμένος
Senior Member
 
Εγγραφή: 27-01-2007
Περιοχή: Δράμα
Μηνύματα: 1.993
Προεπιλογή

Καταρχήν σου εύχομαι καλή επιτυχία στην λιμνούλα σου.

Τα ποντίκια μισούνε το άρωμα του φρέσκου δυόσμου, ίσως αν βάλεις μερικές ρίζες στον κήπο σου να έχεις αποτέλεσμα. Να ξέρεις όμως ότι πολλαπλασιάζονται πολύ με τα ριζώματά τους. Για να μην γεμίσει ο κήπος δυόσμο καλύτερα να μπει σε γλάστρες. Αν έρχονται σκαρφαλόνοντας από κάπου, μια λωρίδα λαμαρίνα τα εμποδίζει, γιατί γλυστράνε.

Οι κατσαρίδες είναι δύσκολο θέμα. Μόνο με παγίδες. Ένα κουτί που μέσα να έχει λίγο κρασί, το οποίο λατρεύουν, πάνε για μαμ πέφτουν μέσα και δεν μπορούν να βγουν. Αλλά αφου το άρωμα του κρασιού τις τραβάει θα μαζευτούν όλες οι κατσαρίδες της περιοχής.
Καλύτερα να βάλεις μέσα λίγα νεκρά φύλλα και να υπάρχει υγρασία, και φρόντισε να μην υπάρχουν στον κήπο- κατα το δυνατό- μέρη όπου θα υπάρχει υγρασία με πεσμένα φύλλα, και γενικά μέρη που μπορούν να κρυφτούν.

Τα κουνούπια δεν πρέπει να σε ανησυχούν. όσα πάνε στη λίμνη το τρώνε τα ψάρια. Για να μην έρχονται στον κήπο φύτεψε πολλά γεράνια, λιβάνι (μπλέ φυτό), αφρικανική καλέντουλα, και αν βρεις ένα εντομοαποθητικό είδος χρυσάνθεμου, εγώ δεν το βρήκα.

Ελπίζω να σε βοήθησα. και πάλι καλή επιτυχία
__________________

«...όταν μια πόρτα στη ζωή κλείνει, μια άλλη ανοίγει. Ευτυχισμένος θα είναι ο άνθρωπος που δεν θα σταθεί να κλαίει μπροστά στην κλειστή πόρτα, αλλά θα ψάξει να βρει την ανοικτή και να ευτυχήσει
[B]Helen Keller

[
Απάντηση με παράθεση
  #6  
Παλιά 15-05-07, 07:55
shadow Ο χρήστης shadow δεν είναι συνδεδεμένος
Member
 
Εγγραφή: 05-06-2004
Περιοχή: Πειραιας
Μηνύματα: 150
Προεπιλογή

σε ευχαριστω θερμα φιλη lucy
καλη επιτυχια και σε σενα
__________________
Απάντηση με παράθεση
  #7  
Παλιά 15-05-07, 10:12
Το avatar του χρήστη nickall13
nickall13 Ο χρήστης nickall13 δεν είναι συνδεδεμένος
Member
 
Εγγραφή: 08-12-2004
Περιοχή: Γέρακας-Χαλκίδα
Μηνύματα: 128
Προεπιλογή

Καλημέρα. Αν και είπες πως δεν θες να βάλεις χημικά, το θειάφι το συζητάς; Αν περικυκλώσεις τον χώρο με μια γραμμή θειάφι, οι κατσαρίδες δεν θα περάσουν από πάνω του. Παλιά έμενα διπλα σε φούρνο και ξέρω
__________________
Απάντηση με παράθεση
  #8  
Παλιά 15-05-07, 12:10
Το avatar του χρήστη Kostas G.
Kostas G. Ο χρήστης Kostas G. δεν είναι συνδεδεμένος
Administrator
 
Εγγραφή: 08-09-2003
Περιοχή: Γλυφάδα
Μηνύματα: 2.793
Προεπιλογή

Οι κατσαρίδες είναι επιθυμητές στον κήπο λόγω της διατροφής τους(νεκρά σάπια φύλλα,σάπιο ξύλο και γενικά νεκρή οργανική ύλη) και οπότε δεν βλέπω λόγω να μην τις θες...Το ίδιο και τα ποντίκια βέβαια(όσο είναι έξω από το σπίτι) δεν ενοχλούν αλλά αυτό είναι άλλο θέμα και δεν θα συμφωνήσουμε Πάντως ένας βόας pet ίσως σου έλυνε το πρόβλημα...
Αν πάντως φροντίσεις να μην υπάρχουν μέρη να φωλιάσουν στον κήπο σου,τότε αν έχεις θα έχεις περαστικά από διπλανούς κήπους.
Πρόβλημα κουνουπιών δεν θα έχεις...Τρώγωνται οι νύμφες από τα ψάρια...Βάτραχους(μικρά είδη) μπορείς να έχεις αν τα ψάρια που θα μπουν είναι 2φορές το μήκος του βατράχου,απλά θα κυκλοφορούν και στον κήπο σου γενικά,αν δεν σε πειράζει μια χαρά θα είναι.
__________________
"The Catfish is a Plenty Good Enough Fish For Anyone" - Mark Twain
Απάντηση με παράθεση
  #9  
Παλιά 15-05-07, 13:44
Το avatar του χρήστη jimfytakis
jimfytakis Ο χρήστης jimfytakis δεν είναι συνδεδεμένος
Member
 
Εγγραφή: 16-03-2007
Περιοχή: Καβαλα.....
Μηνύματα: 1.377
Προεπιλογή

Παράθεση:
Αρχική Δημοσίευση από Kostas G. Εμφάνιση μηνυμάτων
Πρόβλημα κουνουπιών δεν θα έχεις...Τρώγωνται οι νύμφες από τα ψάρια....

Κουνοποψαρα!!Ειναι και ζωοτοκα!Εγω πιστευω ειναι το πρωτο ειδος που πρεπει να μπει σε λιμνουλα!!Σε ενα ριμηνο με 2-3ζευγαρια θα χουν γινει αμετρητα και δεν θα υπαρχει κουνουπι για δειγμα.Πολυ ανθεκτικα επισης!!
__________________
~OPEL~
Απάντηση με παράθεση
  #10  
Παλιά 16-05-07, 09:10
shadow Ο χρήστης shadow δεν είναι συνδεδεμένος
Member
 
Εγγραφή: 05-06-2004
Περιοχή: Πειραιας
Μηνύματα: 150
Προεπιλογή

κατσαριδες και ποντικια ειναι οχι απλα ανεπιθυμητα αλλα απολυτως μισητα !!!
δεν θελω να τα ξαναδω ποτε ξανα στην αυλη.Αν ημουν επαρχια οκ θα τα δεχομουν σε λογικα πλαισια.Αλλα εδω η μονη οαση φυσικου περιβαλλοντος που μου εχει μεινη ειναι η αυλη και θελω να την απολαμβανω νυχτα μερα χωρις να κοιταζω ανυσηχα τριγυρω.Ασε που δεν θελω να σκεφτω καν την εκδοχη του να μπει κατι στο σπιτι.Διπλανοι κηποι δεν υπαρχουν,μονο μια ακατοικητη παραγκα (νο1 πηγη του κακου) που χωριζετε με μαντρα απο την αυλη και ενα σπιτι που ο πετρινος τοιχος βλεπει στην αυλη (πηγη νο 2).Οκ την πετρα θα την αρμολογησω και θα τελειωσουμε,η μαντρα με ανησηχει.Η λαμαρινα της lucy μου ακουγετε καλη ιδεα.
Παμε αλλου τωρα ,κανενας χτιστης υπαρχει ?
Τα παρτερια να χτιστουν με πετρα ή τουβλο με επενδυση πετρα?Και σε τι παχος για να αντεξει την πιεση του νερου?
Το δαπεδο κατω εχει πλακες πεζοδρομιου.Να ριξω σεναζι κατω κατευθιαν ή να σπασω τις πλακες στο παχος του παρτεριου και να ξεκινησω απο εκει το χτισιμο?
Μαλλον θα καταληξω στο παρακατω σχεδιο για να κερδισω λιτρα.
αν το υψος ειναι 70 οι καθετες πλευρες 1χ1 και πλατος 60 στα ποσα λιτρα περιπου ειμαι?την "κουρμπα" δεν μπορω να υπολογισω.
Κουνουποψαρα δεν νομιζω.Θα γεμισω και δεν θα εχω τι να τα κανω.Δεν θα γινουν μαμ απο τα βατραχια?Τα οποια δεν με χαλαει καθολου να κανουν τις βολταριες τους στην αυλη.Μην γινουν τροφη για κανενα αρουρεα φοβαμαι.
Μετα θα αγορασω αεροβολο και θα στησω καραουλι
Συνημμένα Thumbnails
Πατήστε στην εικόνα για να τη δείτε σε μεγένθυνση

Όνομα:  ayli.jpg
Εμφανίσεις:  463
Μέγεθος:  32,6 KB  
__________________
Απάντηση με παράθεση
  #11  
Παλιά 16-05-07, 09:26
Το avatar του χρήστη lucy
lucy Ο χρήστης lucy δεν είναι συνδεδεμένος
Senior Member
 
Εγγραφή: 27-01-2007
Περιοχή: Δράμα
Μηνύματα: 1.993
Προεπιλογή

Παράθεση:
Αρχική Δημοσίευση από nickall13 Εμφάνιση μηνυμάτων
Καλημέρα. Αν και είπες πως δεν θες να βάλεις χημικά, το θειάφι το συζητάς; ....
Πάντος το θειάφι είναι οικολογικό υλικό όσων αφορούν την γεωργία και τις καλιέργιες.
Καλή μας επιτυχία Shadow!
__________________

«...όταν μια πόρτα στη ζωή κλείνει, μια άλλη ανοίγει. Ευτυχισμένος θα είναι ο άνθρωπος που δεν θα σταθεί να κλαίει μπροστά στην κλειστή πόρτα, αλλά θα ψάξει να βρει την ανοικτή και να ευτυχήσει
[B]Helen Keller

[
Απάντηση με παράθεση
  #12  
Παλιά 17-05-07, 09:37
Το avatar του χρήστη Kostas G.
Kostas G. Ο χρήστης Kostas G. δεν είναι συνδεδεμένος
Administrator
 
Εγγραφή: 08-09-2003
Περιοχή: Γλυφάδα
Μηνύματα: 2.793
Προεπιλογή

Μια και σκέφτεσαι την ιδέα της λαμαρίνας,θα μπορούσες να βάλεις και γυαλί αντί για αυτήν με το ίδιο αποτέλεσμα όσον αφορά τα ποντίκια και πιο όμορφο οπτικό αποτέλεσμα...
__________________
"The Catfish is a Plenty Good Enough Fish For Anyone" - Mark Twain
Απάντηση με παράθεση
  #13  
Παλιά 18-05-07, 08:11
shadow Ο χρήστης shadow δεν είναι συνδεδεμένος
Member
 
Εγγραφή: 05-06-2004
Περιοχή: Πειραιας
Μηνύματα: 150
Προεπιλογή

μαλλον plexi θα βαλω που δεν σπαει τοσο ευκολα οσο το τζαμι
η λαμαρινα ειναι λιγο αντιαισθητικη

τελικα απο χτιστες μαλλον δεν εχουμε τιποτα
__________________
Απάντηση με παράθεση
  #14  
Παλιά 18-05-07, 08:45
Το avatar του χρήστη lucy
lucy Ο χρήστης lucy δεν είναι συνδεδεμένος
Senior Member
 
Εγγραφή: 27-01-2007
Περιοχή: Δράμα
Μηνύματα: 1.993
Προεπιλογή

Πολύ καλή ιδέα το plexi!!!
Γι' αυτό πρέπει να μοιραζόμαστε τις ιδέες μας, όχι μόνο για να βοηθήσουμε αλλά και για να γίνουν καλύτερες και έτσι να βοηθηθούμε κι εμείς.
Παλιά είχα απορρίψει τη ιδέα της λαμαρίνας ακριβώς για λόγους αισθητικής.
Τώρα όμως...
__________________

«...όταν μια πόρτα στη ζωή κλείνει, μια άλλη ανοίγει. Ευτυχισμένος θα είναι ο άνθρωπος που δεν θα σταθεί να κλαίει μπροστά στην κλειστή πόρτα, αλλά θα ψάξει να βρει την ανοικτή και να ευτυχήσει
[B]Helen Keller

[
Απάντηση με παράθεση
  #15  
Παλιά 18-05-07, 09:32
maikl Ο χρήστης maikl δεν είναι συνδεδεμένος
Senior Member
 
Εγγραφή: 12-12-2006
Περιοχή: Βεροια
Μηνύματα: 3.464
Προεπιλογή

αν το υψος ειναι 70 οι καθετες πλευρες 1χ1 και πλατος 60 στα ποσα λιτρα περιπου ειμαι?την "κουρμπα" δεν μπορω να υπολογισω.

Αν θελεις μπορεις να θεωρησεις οτι αυτο που θα κανεις ειναι ενα τεταρτημοριο ενος κυκλου με μικρη αποκληση-διαφορα απο το πραγματικο εμβαδο,το οποιο εχει ακτινα κυκλου το 1 μ.

Αρα το εμβαδο σου ειναι πr2(εμβαδο κυκλου) δια 4, αρα 3,14χ1χ1/4=0,785μ2
Οποτε ο ογκος ειναι 0,70χ0,785=549,5 λιτρα

Χοντρικα παντοτε...μπορεις να πεις οτι εχεις 500 λιτ.
Απάντηση με παράθεση
  #16  
Παλιά 24-05-07, 13:26
eon123 Ο χρήστης eon123 δεν είναι συνδεδεμένος
Member
 
Εγγραφή: 23-05-2007
Περιοχή: Θεσσαλονίκη
Μηνύματα: 78
Προεπιλογή

Μια απλη και γρηγορη λυση ειναι να πας σε μια μαντρα που φτιαχνουνε κιουγκια (τσιμεντενιοι κυλινδροι) για βοθρους συνηθως και να παρεις ενα στις διαστασεις που θελεις .Θα ριξεις κατω λιγο μπετον (εδω θα προτεινα να προβλεψεις μια μικρη κλιση προς το κεντρο και να φτιαξεις και την αποροη εκει) θα τοποθετησεις επανω τον κυλινδρο και θα στεγανοποιησης με ενα κονιαμα. Οσο για το αισθητικο κοματι μπορεις να επενδυσεις τον κυλινδρο με ξυλο ,τουβλο,πετρα η ακομα πιο απλα να φυτεψεις γυρω του μερικους κισσους και σε ενα χρονο δεν θα βλεπεις πλεον τσιμεντο και θα δενει και με τον κηπο σου.
Απάντηση με παράθεση
  #17  
Παλιά 24-05-07, 16:07
Το avatar του χρήστη in the pond
in the pond Ο χρήστης in the pond δεν είναι συνδεδεμένος
Γηραιοί του GAB
 
Εγγραφή: 24-05-2007
Περιοχή: ΚΥΠΡΟΣ
Μηνύματα: 3.198
Προεπιλογή

Παράθεση:
Αρχική Δημοσίευση από shadow Εμφάνιση μηνυμάτων
Καλη σας μερα,
ειμαι στην φαση της ανακαινισης του σπιτιου μου το οποιο εχει μια αυλη η οποια ηταν παντοτε γεματη απλα με γλαστρες.Γυρω γυρω εχει τοιχο οπως φαινεται στο σχεδιο και θα ηθελα να χτισω ενα παρτερι με πετρα οπου το ενα κομματι του θα γινει (μακαρι ) μια μικρη λιμνουλα.το υπολοιπο χωμα και φυτεμα.Ευτυχως δεν την βλεπει ο ηλιος παρα μονο για 1-2 ωρες το απογευμα.Προβληματα τωρα ¨
1.κλασικα πως θα κανω στεγανοποιηση του παρτεριου-λιμνη
σκεφτομαι για κονιαμα στεγανοποιησης και μετα μεμβρανη για την λιμνη
2.κατσαριδες και ποντικια που δυστυχως κυκλοφορουν (πειραια ειμαστε )μπορω να τα αντιμετωπισω με φυσικο τροπο ?Χωρις χημικα ισως με καποια φυτα που τα απωθουν ?
Ποιος ειπαμε οτι ειναι γεωπονος......?
Θα εχω προβλημα με τα ψαρια?Οκ αν καμμια τερεζα πεσει μεσα θα την κανουν μαμ.Αλλα τα ποντικια ?Τα μισωωωωω
αυτα προς το παρον
Γειά σου.
Αφού ακόμα λες ότι βρίσκεσαι στη σκέψη, καλό είναι να γνωρίζεις μερικά εξαιρετικά σημαντικά πράγματά, ώστε να μπορείς να απολαμβάνεις χωρίς κόπο την λίμνη σου στο μέλλον.
1. Κοντινή πρόσβαση σε ηλεκτρική εγκατάσταση. (Θα χρειαστείς αντλία και φίλτρο)
2. Κοντινή πρόσβαση σε εστία νερού. (διαφορετικά θα τα βρεις σκούρα, ειδικά το καλοκαιρι όπου θα έχεις συνεχόμενη εξάτμιση και απορρόφιση νερού από τα φυτά που θα πρέπει να προσθέσεις).
3. Απόφυγε να εγκαταστήσεις τη λίμνη σου κάτω από φυλλοβόλα δέντρα. (Τον χειμώνα τα φύλλα θα δημιουργήσουν πολλά προβλήματα που θα τα εξηγήσουμε στο μέλλον).
4. Αν αποφασίσεις για ψάρια, τότε πρέπει να προσέξεις πολύ για το βάθος της λίμνης σου. Οι ψεκασμοί επίσης στην αυλή σου απαγορεύονται καθώς και τα πιο αθώα εντομοκτόνα, είναι τοξικά για τα ψάρια. Τα ποντίκια όντως δεν μπορούν να προκαλέσουν κανένα κακό στη λίμνη.


Υπάρχουν πολλά άλλα που θα τα πούμε στο μέλλον. Εξάλλου εδώ θα είμαστε.
-------------------------
Παράθεση:
Αρχική Δημοσίευση από lmaikl Εμφάνιση μηνυμάτων
αν το υψος ειναι 70 οι καθετες πλευρες 1χ1 και πλατος 60 στα ποσα λιτρα περιπου ειμαι?την "κουρμπα" δεν μπορω να υπολογισω.

Αν θελεις μπορεις να θεωρησεις οτι αυτο που θα κανεις ειναι ενα τεταρτημοριο ενος κυκλου με μικρη αποκληση-διαφορα απο το πραγματικο εμβαδο,το οποιο εχει ακτινα κυκλου το 1 μ.

Αρα το εμβαδο σου ειναι πr2(εμβαδο κυκλου) δια 4, αρα 3,14χ1χ1/4=0,785μ2
Οποτε ο ογκος ειναι 0,70χ0,785=549,5 λιτρα

Χοντρικα παντοτε...μπορεις να πεις οτι εχεις 500 λιτ.
70εκ. βάθος είναι καλό. Αυτό όμως που με ανησυχεί είναι τα 500 λίτρα. Είναι πολύ λίγα ώστε να δεχτούν ψάρια. Σκέψου τον Χειμώνα πόσο εύκολα μπορεί να παγώσει.

1 τετραγωνικό μέτρο επιφάνεια είναι απαγορευτικά λίγο, ακόμα και για νούφαρα που πολλές φορές ένα αναπτυγμένο φυτό τριών χρώνων μπορεί να απλωθεί σε πολλαπλάσια ακτίνα της επιφάνειας που προσφέρεις.

Παιδιά, όταν λέμε λίμνη με φυτά και ψάρια, στο νου μας θα πρέπει να έρχεται μεγάλο πράγμα. Ελάχιστο 4 τετραγωνικά μέτρα επιφάνεια και 4 κυβικά μέτρα νερού. Τα ΚΟΙ χρειάζονται το κάθε ένα ξεχωριστά περίπου 400λίτρα νερού και τα χρυσόψαρα 40-60λίτρα.

Νευραλγικό παράγοντα παίζουν πάντα τα φυτά. Ή λίμνη, δεν είναι ενυδρείο, άρα δεν κάνουμε αλλαγές νερού, απλά συμπληρώνουμε. ¶ρα χρειαζόμαστε τόσα φυτά ώστε να τραβούν τα νιτρικά με φυσικό επακόλουθο την ελάττωση της αιωρούμενης άλγης.

Η λίμνη είναι ένα τεράαααααααααστιο θέμα και χρειάζονται μέρες να τα εξηγήσουμε. Σιγά σιγά όμως θα το πετύχουμε.
__________________
Το air diffuser, είναι αεραντλία...


Τελευταία επεξεργασία από το χρήστη in the pond : 24-05-07 στις 16:07 Αιτία: Automerged Doublepost
Απάντηση με παράθεση
  #18  
Παλιά 25-05-07, 14:12
shadow Ο χρήστης shadow δεν είναι συνδεδεμένος
Member
 
Εγγραφή: 05-06-2004
Περιοχή: Πειραιας
Μηνύματα: 150
Προεπιλογή

φιλε eon μου αρεσε πολυ η ιδεα σου και θα το ψαξω.χωρις πολλα πολλα χτισιματα βαζεις τον κυλινδρο και εισαι ετοιμος !!
η μονη δυσκολια που βλεπω ειναι οτι η μονη προσβαση στην αυλη ειναι μεσα απο το σπιτι (ειναι στην πισω μερια) και μου φαινεται λιγο δυσκολο να τον περασω απο μεσα,απο 2 πορτες συγκεκριμενα.Αλλα θα το δω ...Ευχαριστω
φιλε "μεσα στη λιμνη" το 1 και 2 υπαρχουν το 3 το γνωριζω και θα το ρυθμισω,προς το παρον υπαρχουν μονο μερικες γλαστρες.Το 4 επισης και ειναι κατι που δεν το θελω.Εδω δεν θα χρησιμοποιω απορυπαντικα για τον καθαρισμο του σπιτιου δεν θα ριξω εντομο-τρωκτικοκτονα .Υπαρχει παντα ο φυσικος τροπος (οπου υπαρχει ).
off topic ξερει κανεις με τι μπορουμε να πλυνουμε πιατα κ ρουχα?Με οικολογικο τροπο.

οσον αφορα το μεγεθος τωρα δεν συμφωνω.Εχουμε και εμεις οι χωρις πολυ χωρο και απεραντουσ κηπους μεσα στην πολη δικαιωμα να νοιωσουμε κοντα στην φυση .Σιγουρα μια μεγαλυτερη επιφανεια θα ηταν επιθυμητη αλλα απλα δεν υπαρχει.Να μην το κανει δηλαδη ο αλλος στο μπαλκονι του αφου του αρεσει?Οκ δεν ειναι ενα οικοσυστημα που θα εξελιχθει με τον τροπο που αυτο θα γινοταν στην φυση ή σε ενα χωρο μεγαλο κοντα σε αυτην αλλα γιατι να μην το κανω?500 λιτρα?οκ τοσα μπορω και θα βαλω και 2 -3 χρυσοψαρα κ θα ειναι τρισευτυχισμενα.Αλλοι τα εχουν σε 30 λιτρα να μην πω και χειροτερα.Θα βαλω και τον παπυρο και τα νουφαρα και τα μπαμπου και οτι αλλο μου κατεβει και οπως και σε ενα ενυδρειο θα τα κραταω στο επιθυμητο μεγεθος.
Δεν το θεωρεις λιμνη αυτο ? Οκ ουτε και εγω.Μεγαλο χτιστο ενυδρειο σε αυλη ειναι.
Θα εχει κ τον καταρακτη του να τον ακουω οταν παω για υπνο κ γιανα μην παγωσει το νερο
(σιγα μην παγωνε στον πειραια ειμαι και σοβαρο χειμωνα δεν θα ξαναδουμε)
Στο βαθος δεν με περιοριζει κατι ,μπορει να γινει και 1μ.Με σκαλοπατια για φυτεμα
__________________
Απάντηση με παράθεση
  #19  
Παλιά 25-05-07, 14:52
eon123 Ο χρήστης eon123 δεν είναι συνδεδεμένος
Member
 
Εγγραφή: 23-05-2007
Περιοχή: Θεσσαλονίκη
Μηνύματα: 78
Προεπιλογή

""""""off topic ξερει κανεις με τι μπορουμε να πλυνουμε πιατα κ ρουχα?Με οικολογικο τροπο.""""

Με αλισιβα οπως εκαναν οι παπουδες μας (για την ακριβεια οι γιαγιαδες μας)
Και εξηγουμε για οσους δεν ξερουν :
Η αλισιβα ειναι το σταχτονερο :


Η αλισίβα είναι ένα αλκαλικό διάλυμα που παρασκευάζεται με το βράσιμο του νερού μαζί με στάχτη από καμένα ξύλα. Συνίσταται δε να χρησιμοποιείται βρόχινο νερό. Στα παλαιότερα χρόνια τη χρησιμοποιούσαν για τη λεύκανση των ρούχων, αλλά και αντί για σαπούνι και για το λούσιμο (ειδικά για λιπαρά μαλλιά). Η αλισίβα έχει καθαριστικές ιδιότητες λόγω του ανθρακικού καλίου που προσλαμβάνει από τη στάχτη και το οποίο έχει την ικανότητα αυτό να διαλύει τα έλαια και τα λίπη γενικά όχι όμως και ορυκτέλαια (γράσο, παραφίνες, βαζελίνη κλπ.).
Η αλισίβα ήταν άλλοτε πολύ διαδεδομένη. Χρησιμοποιείται ακόμη και σήμερα σε απομακρυσμένα χωριά ιδίως τον Χειμώνα, στη πλύση των ασπρορούχων.

Με την αλισίβα γινόταν η "μπουγάδα". Δηλαδή αφού τα ασπρόρουχα πλενόντουσαν καλά, τοποθετούνταν σε ένα ψηλό καλάθι, στο "μπουγαδοκόφινο", το οποίο όμως καλυπτόταν προηγουμένως εσωτερικά με μια μεγάλη άσπρη χοντρή μαντήλα ή ύφασμα το λεγόμενο "στακτόπανο" και που τα άκρα της (του) έβγαιναν έξω από το κοφίνι. Στη συνέχεια διπλώνονταν τα πλυμένα ασπρόρουχα και στοιβάζονταν μέσα στο μπουγαδοκόφινο και στο τέλος σκεπάζονταν αυτά από τις άκρες του στακτόπανου. Πάνω λοιπόν από το στακτόπανο άρχιζαν και έριχναν αργά αργά και κατά διαστήματα την αλισίβα. Το υγρό αυτό διάλυμα σιγά - σιγά διαπερνούσε τα ρούχα και εξέρχονταν από το κάτω μέρος του κοφινιού παρασύροντας τα υπολείμματα από τους λεκέδες που υπήρχαν στα ρούχα. Όταν η αλισίβα ήταν καλή, τότε τα ασπρόρουχα έπαιρναν ένα κρινόλευκο χρώμα που τύφλα να ΄χουν σήμερα "οι πράσινοι, οι κόκκινοι και οι θαλασσιοί οι κόκκοι".
  • Από τη παραπάνω διαδικασία προέρχεται σήμερα η δημώδης έκφραση "μπουγαδοκόφινο" με την οποία και χαρακτηρίζονται άτομα μειωμένης προσωπικότητας ή υποτιμητικά για ευτραφέστατης σωματικής διάπλασης άτομα.
Επίσης και σήμερα ακόμη την αλυσίβα την χρησιμοποιούν στη μαγειρική (και ιδιαίτερα σε συνταγές για μερικά είδη κουλουριών, όπως τα μελομακάρονα).

Πηγη:
Ανακτήθηκε από "http://el.wikipedia.org/wiki/%CE%91%CE%BB%CE%B9%CF%83%CE%AF%CE%B2%CE%B1"
Ας με συγχωρήσουν οι admin που το θεμα δεν ειναι αυτο αλλα αφου εγινε η ερωτηση...
__________________
Τα πράγματα είναι απλά...
Απάντηση με παράθεση
  #20  
Παλιά 25-05-07, 15:43
Το avatar του χρήστη in the pond
in the pond Ο χρήστης in the pond δεν είναι συνδεδεμένος
Γηραιοί του GAB
 
Εγγραφή: 24-05-2007
Περιοχή: ΚΥΠΡΟΣ
Μηνύματα: 3.198
Προεπιλογή

Παράθεση:
Αρχική Δημοσίευση από shadow Εμφάνιση μηνυμάτων
φιλε eon μου αρεσε πολυ η ιδεα σου και θα το ψαξω.χωρις πολλα πολλα χτισιματα βαζεις τον κυλινδρο και εισαι ετοιμος !!
η μονη δυσκολια που βλεπω ειναι οτι η μονη προσβαση στην αυλη ειναι μεσα απο το σπιτι (ειναι στην πισω μερια) και μου φαινεται λιγο δυσκολο να τον περασω απο μεσα,απο 2 πορτες συγκεκριμενα.Αλλα θα το δω ...Ευχαριστω
φιλε "μεσα στη λιμνη" το 1 και 2 υπαρχουν το 3 το γνωριζω και θα το ρυθμισω,προς το παρον υπαρχουν μονο μερικες γλαστρες.Το 4 επισης και ειναι κατι που δεν το θελω.Εδω δεν θα χρησιμοποιω απορυπαντικα για τον καθαρισμο του σπιτιου δεν θα ριξω εντομο-τρωκτικοκτονα .Υπαρχει παντα ο φυσικος τροπος (οπου υπαρχει ).
off topic ξερει κανεις με τι μπορουμε να πλυνουμε πιατα κ ρουχα?Με οικολογικο τροπο.

οσον αφορα το μεγεθος τωρα δεν συμφωνω.Εχουμε και εμεις οι χωρις πολυ χωρο και απεραντουσ κηπους μεσα στην πολη δικαιωμα να νοιωσουμε κοντα στην φυση .Σιγουρα μια μεγαλυτερη επιφανεια θα ηταν επιθυμητη αλλα απλα δεν υπαρχει.Να μην το κανει δηλαδη ο αλλος στο μπαλκονι του αφου του αρεσει?Οκ δεν ειναι ενα οικοσυστημα που θα εξελιχθει με τον τροπο που αυτο θα γινοταν στην φυση ή σε ενα χωρο μεγαλο κοντα σε αυτην αλλα γιατι να μην το κανω?500 λιτρα?οκ τοσα μπορω και θα βαλω και 2 -3 χρυσοψαρα κ θα ειναι τρισευτυχισμενα.Αλλοι τα εχουν σε 30 λιτρα να μην πω και χειροτερα.Θα βαλω και τον παπυρο και τα νουφαρα και τα μπαμπου και οτι αλλο μου κατεβει και οπως και σε ενα ενυδρειο θα τα κραταω στο επιθυμητο μεγεθος.
Δεν το θεωρεις λιμνη αυτο ? Οκ ουτε και εγω.Μεγαλο χτιστο ενυδρειο σε αυλη ειναι.
Θα εχει κ τον καταρακτη του να τον ακουω οταν παω για υπνο κ γιανα μην παγωσει το νερο
(σιγα μην παγωνε στον πειραια ειμαι και σοβαρο χειμωνα δεν θα ξαναδουμε)
Στο βαθος δεν με περιοριζει κατι ,μπορει να γινει και 1μ.Με σκαλοπατια για φυτεμα
Φίλε μου, νομίζω με παρεξήγησες. Δεν θέλω να μπω σφίνα στην επιθυμία σου να κάνεις λίμνη. Προς Θεού. Αυτό που έγραψα το έκανα απλά για να αποφύγεις κάποια πράγματα που μπορεί στο μέλλον να αποβούν κακά αγκάθια στην όλη δημιουργία.

Ναι, οι βαθμίδες στη λίμνη είναι σημαντικές μπορώ να πω γιατί τα φυτά της λίμνης δεν φυτεύονται όλα στο ίδιο βάθος νερού, ακόμα και οι νυμφαίες (νούφαρα).

Καταρράκτη έχω και εγώ και συμφωνώ ότι είναι πολύ σημαντικό στοιχείο για αποφυγή του επιφανιακού πάγου.

Αυτό που είπα για τα φυτά, θα συνεχίσω να το υποστηρίζω γιατί γνωρίζω με πείρα τι θα πει 1 γλάστρα νούφαρα μέσα στη λίμνη. Το 1 τετραγωνικό μέτρο επιφάνειας θα είναι πολύ λίγο. Αν είναι δυνατόν προσπάθησε να το μεγαλώσεις ακόμα λίγο. Όταν κατασκευάσεις τη λίμνη, τότε καταλαμβαίνεις και αναρωτάσαι γιατί δεν την έκανες λίγο μεγαλύτερη. Ξέρω, γιατί το αντιμετώπισα αυτό που λέω.
__________________
Το air diffuser, είναι αεραντλία...

Απάντηση με παράθεση
  #21  
Παλιά 29-05-07, 09:19
Το avatar του χρήστη lucy
lucy Ο χρήστης lucy δεν είναι συνδεδεμένος
Senior Member
 
Εγγραφή: 27-01-2007
Περιοχή: Δράμα
Μηνύματα: 1.993
Προεπιλογή

Βασίλη (in the pond ) ποιά η γνώμη σου γι' αυτό; www.aquatek.gr/vb/showthread.php?t=16177
"Έζησε" πολύ καλά αρκετά χρόνια , με πολύ φροντίδα βέβαια, αλλά και χωρίς τις γνώσεις και την βοήθεια που έχω τώρα.
Τώρα έχω μια μίνι λιμνούλα.
__________________

«...όταν μια πόρτα στη ζωή κλείνει, μια άλλη ανοίγει. Ευτυχισμένος θα είναι ο άνθρωπος που δεν θα σταθεί να κλαίει μπροστά στην κλειστή πόρτα, αλλά θα ψάξει να βρει την ανοικτή και να ευτυχήσει
[B]Helen Keller

[
Απάντηση με παράθεση
  #22  
Παλιά 29-05-07, 09:51
Το avatar του χρήστη in the pond
in the pond Ο χρήστης in the pond δεν είναι συνδεδεμένος
Γηραιοί του GAB
 
Εγγραφή: 24-05-2007
Περιοχή: ΚΥΠΡΟΣ
Μηνύματα: 3.198
Προεπιλογή

Παράθεση:
Αρχική Δημοσίευση από lucy Εμφάνιση μηνυμάτων
Βασίλη (in the pond ) ποιά η γνώμη σου γι' αυτό; www.aquatek.gr/vb/showthread.php?t=16177
"Έζησε" πολύ καλά αρκετά χρόνια , με πολύ φροντίδα βέβαια, αλλά και χωρίς τις γνώσεις και την βοήθεια που έχω τώρα.
Τώρα έχω μια μίνι λιμνούλα.
Φίλη Lusy, σου έχω ήδη απαντήσει στο θέμα που με περέπεμψες.
__________________
Το air diffuser, είναι αεραντλία...

Απάντηση με παράθεση
  #23  
Παλιά 25-05-10, 13:11
shadow Ο χρήστης shadow δεν είναι συνδεδεμένος
Member
 
Εγγραφή: 05-06-2004
Περιοχή: Πειραιας
Μηνύματα: 150
Προεπιλογή

back from the dead

η λιμνη τελικα μετα απο 3 χρονια ειναι ετοιμη!
βρηκα τελικα πεταμενη (!) μια πλαστικη απο ανακαινιση καφετεριας και επειδη δεν μπορουσα να σκαψω εκανα βαση απο τουβλα και την εστησα.
εχει μεσα μια ποντεδερια,βουρλο και καλαμια σε αναπτυξη (2 εβδομαδων ειναι) και ενα καταρακτη με δοχειο σαν αυτο http://www.youtube.com/watch?v=gVGAR1k5e18
το οποιο εχει λιγο siporax.
φωτος συντομα
μια ερωτηση
πειτε μου εναν καλο λογο να μην γεμισω το φιλτρο με σφουγγαρια του μπανιου σαν αυτο για βιολογικο-μηχανικο φιλτραρισμα
θενκς
Συνημμένα Thumbnails
Πατήστε στην εικόνα για να τη δείτε σε μεγένθυνση

Όνομα:  mainLarge_1015200785020pm.jpg
Εμφανίσεις:  461
Μέγεθος:  15,9 KB  
__________________

Τελευταία επεξεργασία από το χρήστη shadow : 25-05-10 στις 13:12 Αιτία: missing text
Απάντηση με παράθεση
  #24  
Παλιά 25-05-10, 13:27
Το avatar του χρήστη in the pond
in the pond Ο χρήστης in the pond δεν είναι συνδεδεμένος
Γηραιοί του GAB
 
Εγγραφή: 24-05-2007
Περιοχή: ΚΥΠΡΟΣ
Μηνύματα: 3.198
Προεπιλογή

Παράθεση:
Αρχική Δημοσίευση από shadow Εμφάνιση μηνυμάτων
back from the dead

η λιμνη τελικα μετα απο 3 χρονια ειναι ετοιμη!
βρηκα τελικα πεταμενη (!) μια πλαστικη απο ανακαινιση καφετεριας και επειδη δεν μπορουσα να σκαψω εκανα βαση απο τουβλα και την εστησα.
εχει μεσα μια ποντεδερια,βουρλο και καλαμια σε αναπτυξη (2 εβδομαδων ειναι) και ενα καταρακτη με δοχειο σαν αυτο http://www.youtube.com/watch?v=gVGAR1k5e18
το οποιο εχει λιγο siporax.
φωτος συντομα
μια ερωτηση
πειτε μου εναν καλο λογο να μην γεμισω το φιλτρο με σφουγγαρια του μπανιου σαν αυτο για βιολογικο-μηχανικο φιλτραρισμα
θενκς
Οι λόγοι είναι απλοί και είναι μάλιστα ολλοί:

Τα σφουγγάρια του μπάνιου είναι φτιαγμένα για το μπάνιο. Πώς μπορεί να είσαι σίγουρος ότι το υλικό τους είναι κατάλληλο για ενυδρειακή χρήση ή τέλος πάντων δεν εσσωκλείουν κάτι επικίνδυνο στην σύνθεση τους?

Οι πόροι των σφουγγαριών μπάνιου είναι πολύ μικροί και πικνοί με αποτέλεσμα να μην μπορεί να έχει καλή κυκλοφορία το νερό ενδιάμεσά τους. Η λάσπη και τα λοιπά στεραιά σχεδόν άμεσα θα φράξουν κάθε πόρο έτσι που να τα καταστήσει εντελώς άχριστα και επικίνδυνα.
__________________
Το air diffuser, είναι αεραντλία...

Απάντηση με παράθεση
  #25  
Παλιά 25-05-10, 13:38
Το avatar του χρήστη kwstas_original
kwstas_original Ο χρήστης kwstas_original δεν είναι συνδεδεμένος
Senior Member
 
Εγγραφή: 22-11-2008
Περιοχή: ΑΘΗΝΑ
Μηνύματα: 1.672
Αποστολή μηνύματος μέσω MSN στον/στην kwstas_original Send a message via Skype™ to kwstas_original
Προεπιλογή

Παράθεση:
Αρχική Δημοσίευση από shadow Εμφάνιση μηνυμάτων
μια ερωτηση
πειτε μου εναν καλο λογο να μην γεμισω το φιλτρο με σφουγγαρια του μπανιου σαν αυτο για βιολογικο-μηχανικο φιλτραρισμα
θενκς
Αν σου επιτρεπεται η προσβαση διαβασε αυτο http://www.monsterfishkeepers.com/fo...ad.php?t=88677

Πολλοι τα χρησιμοποιουν με επιτυχια αναμεσα τους και εγω.
Παρολαυτα, θα συμφωνησω πως θα φραξουν γρηγορα τα ανοιγματα απο την μπιχλα.
Θα σου προτεινα βιοσφαιρες για την χρηση που προοριζεις..
Απάντηση με παράθεση
  #26  
Παλιά 25-05-10, 13:46
Το avatar του χρήστη douran_p
douran_p Ο χρήστης douran_p δεν είναι συνδεδεμένος
Senior Member
 
Εγγραφή: 04-05-2009
Περιοχή: Ορεστιαδα
Μηνύματα: 855
Προεπιλογή

Παράθεση:
Αρχική Δημοσίευση από lucy Εμφάνιση μηνυμάτων
Καταρχήν σου εύχομαι καλή επιτυχία στην λιμνούλα σου.

Τα ποντίκια μισούνε το άρωμα του φρέσκου δυόσμου, ίσως αν βάλεις μερικές ρίζες στον κήπο σου να έχεις αποτέλεσμα. Να ξέρεις όμως ότι πολλαπλασιάζονται πολύ με τα ριζώματά τους. Για να μην γεμίσει ο κήπος δυόσμο καλύτερα να μπει σε γλάστρες. Αν έρχονται σκαρφαλόνοντας από κάπου, μια λωρίδα λαμαρίνα τα εμποδίζει, γιατί γλυστράνε.

Οι κατσαρίδες είναι δύσκολο θέμα. Μόνο με παγίδες. Ένα κουτί που μέσα να έχει λίγο κρασί, το οποίο λατρεύουν, πάνε για μαμ πέφτουν μέσα και δεν μπορούν να βγουν. Αλλά αφου το άρωμα του κρασιού τις τραβάει θα μαζευτούν όλες οι κατσαρίδες της περιοχής.
Καλύτερα να βάλεις μέσα λίγα νεκρά φύλλα και να υπάρχει υγρασία, και φρόντισε να μην υπάρχουν στον κήπο- κατα το δυνατό- μέρη όπου θα υπάρχει υγρασία με πεσμένα φύλλα, και γενικά μέρη που μπορούν να κρυφτούν.

Τα κουνούπια δεν πρέπει να σε ανησυχούν. όσα πάνε στη λίμνη το τρώνε τα ψάρια. Για να μην έρχονται στον κήπο φύτεψε πολλά γεράνια, λιβάνι (μπλέ φυτό), αφρικανική καλέντουλα, και αν βρεις ένα εντομοαποθητικό είδος χρυσάνθεμου, εγώ δεν το βρήκα.

Ελπίζω να σε βοήθησα. και πάλι καλή επιτυχία

για αυτο ρε γαμωτο γεμισα κατσαριδες στο σπιτι??? εχω την <κακια> συνυθεια να κραταω τα αδεια μπουκαλια κρασι και να τα βαζω πανω απο τα ντουλαπια τις κουζινας
__________________
ΟΛΑ ΕΙΝΑΙ ΔΡΟΜΟΣ
Απάντηση με παράθεση
  #27  
Παλιά 25-05-10, 13:46
Το avatar του χρήστη exelix
exelix Ο χρήστης exelix δεν είναι συνδεδεμένος
Senior Member
 
Εγγραφή: 17-12-2009
Περιοχή: Πάτρα-Αθήνα
Μηνύματα: 3.997
Προεπιλογή

Βασικά αυτά (εκτός της μικρής επιφάνειας) δεν είναι και πιο ακριβά και πολλά έχουν και αντιβακτηριακές ουσίες;
Απάντηση με παράθεση
  #28  
Παλιά 25-05-10, 14:12
shadow Ο χρήστης shadow δεν είναι συνδεδεμένος
Member
 
Εγγραφή: 05-06-2004
Περιοχή: Πειραιας
Μηνύματα: 150
Προεπιλογή

ρε παιδια δεν ειναι καν σφουγγαρι,
πλαστικο διχτυ ειναι ας πουμε δεμενο κομπο, δεν το εχετε ξαναδει?ουτε ουσιες εχει ουτε τιποτα.αραιη "πλεξη" πιο εξω ,πιο σφιχτο μεσα λογο του κομπου.δεν εχει πορους.
το μονο που μπορω κ γω να σκεφτω οτι μπορει να βουλωνει.
60 λεπτα εχει ,,,και ομορφα χρωματα .θα δοκιμασω αν ειναι και θα ενημερωσω
__________________
Απάντηση με παράθεση
  #29  
Παλιά 25-05-10, 15:09
maikl Ο χρήστης maikl δεν είναι συνδεδεμένος
Senior Member
 
Εγγραφή: 12-12-2006
Περιοχή: Βεροια
Μηνύματα: 3.464
Προεπιλογή

Να και κατι αντιστοιχο ενυδρειακο...http://www.petcumulus.gr/index.asp?p...oduct&pid=1286
__________________
«Το δις εξαμαρτειν ουκ ανδρος σοφου»
Απάντηση με παράθεση
  #30  
Παλιά 30-05-10, 07:46
shadow Ο χρήστης shadow δεν είναι συνδεδεμένος
Member
 
Εγγραφή: 05-06-2004
Περιοχή: Πειραιας
Μηνύματα: 150
Προεπιλογή

καλημερα,
οι φωτο που λεγαμε
4 κομετ,ποντεδερια,ακορος (καλαμια),βουρλο (δεν εχει φτασει στην επιφανεια ακομα),παπυρος, και πολυ αιωρουμενη αλγη.
τρεχει κανα μηνα η λιμνη,ο καταρακτης το ξερω ειναι χαλια εμφανισιακα θελει βελτιωσεις,και η ροη επισης.Εχω βαλει μια eheim compact 1000 με σωληνα ποτισματος και κανει 2 γωνιες για να βγει στο φιλτρο το οποιο κοβει πολυ την ροη του.εχω παραγειλει νεο σωληνα και θα διορθωθει.Η βαση που καθεται η μπανιερα ειναι τουβλο εξωτερικα ντυμενο με ytong κομμενο φετες ,και αυτο λιγο ασχημο,θα δουμε.Στην αρχη ειχε γεμισει με 1000αδες λαρβες κουνουπιων αλλα μολις μπηκαν τα κομετ δεν εμεινε κολυμπηθροξυλο.Τωρα τα ταιζω
Συνημμένα Thumbnails
Πατήστε στην εικόνα για να τη δείτε σε μεγένθυνση

Όνομα:  P100530_082010.jpg
Εμφανίσεις:  532
Μέγεθος:  71,2 KB   Πατήστε στην εικόνα για να τη δείτε σε μεγένθυνση

Όνομα:  P100530_082046.jpg
Εμφανίσεις:  534
Μέγεθος:  56,0 KB   Πατήστε στην εικόνα για να τη δείτε σε μεγένθυνση

Όνομα:  P100530_082130.jpg
Εμφανίσεις:  543
Μέγεθος:  61,6 KB   Πατήστε στην εικόνα για να τη δείτε σε μεγένθυνση

Όνομα:  P100530_082203.jpg
Εμφανίσεις:  546
Μέγεθος:  67,4 KB  
__________________

Τελευταία επεξεργασία από το χρήστη shadow : 30-05-10 στις 07:57 Αιτία: μισινκ τεξτ
Απάντηση με παράθεση
Απάντηση στο θέμα


Συνδεδεμένοι χρήστες που διαβάζουν αυτό το θέμα: 1 (0 μέλη και 1 επισκέπτες)
 
Εργαλεία Θεμάτων
Τρόποι εμφάνισης

Δικαιώματα - Επιλογές
You may not post new threads
You may not post replies
You may not post attachments
You may not edit your posts

BB code is σε λειτουργία
Τα Smilies είναι σε λειτουργία
Ο κώδικας [IMG] είναι σε λειτουργία
Ο κώδικας HTML είναι εκτός λειτουργίας

Που θέλετε να σας πάμε;

No_parrots

Όλες οι ώρες είναι GMT +2. Η ώρα τώρα είναι 16:12.


Forum engine powered by : vBulletin Version 3.8.8
Copyright ©2000 - 2025, Jelsoft Enterprises Ltd.
Copyright 2000-2025 Greek Aquarists Board
Page generated in 0,07286 seconds with 14 queries